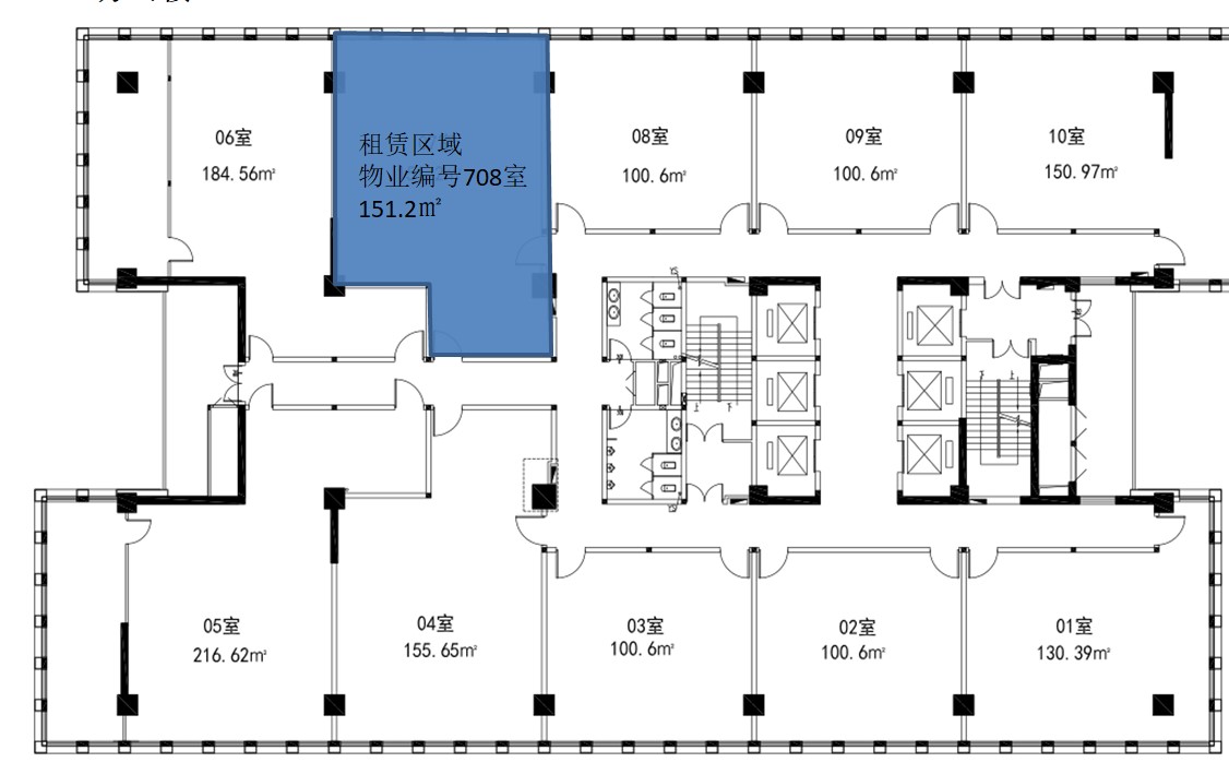
蘇州綠原城鄉建設有限公司對位于蘇州市姑蘇區人民路3158號萬融國際大廈寫字樓607室進行公開競標招租(詳見租賃區域平面圖),萬融國際607室建筑面積約151.2㎡(具體區域招標以現場確認為準)
萬融國際項目招租位置示意圖:

|
店面號 |
建筑面積 |
樓層 |
經營業態 |
|
寫字樓607室 |
約151.2㎡ |
六層 |
不可經營餐飲、零售超市 |
一、報名條件:
1、具有經營相關業態經歷并提供相關證明材料,在蘇合法注冊的獨立法人資格的企業或個人;
2、企業:注冊資金不低于50萬元,注冊經營范圍內包含此次競標從事業態。財務和經營狀況良好,具備履行合同能力;
3、個人
1)人行征信報告
2)競標人提供身份證原件、復印件,在蘇居住證明(本市戶口本或臨時居住證)。
二、報名、現場勘查、答疑的方式和時間:
報名、現場勘查、答疑的地點:蘇州市姑蘇區江宙路132號四樓蘇州市農產品發展有限公司;
咨詢電話:13962195229 王女士
上一篇:陸慕菜市場商位招商公告
下一篇:江宙路農貿市場租賃招標公告